ID

Nikšić, Ozrinići – građevinski plac sa mogućnošću legalne izgradnje

65.000€
0% provizije za kupce
Grad


4.786m2
Omiljene nekretnine

O nekretnini

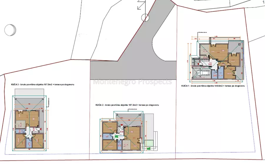
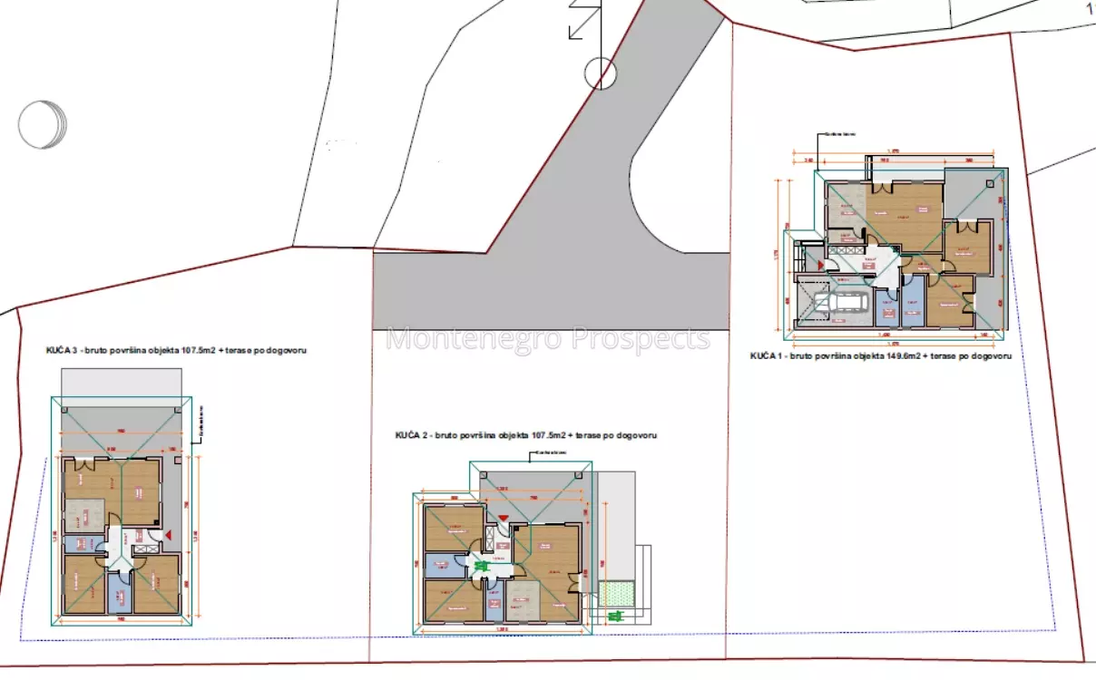
Na prodaju je odličan građevinski plac u naselju Ozrinići, opština Nikšić, sa mogućnošću legalne izgradnje više objekata spratnosti do tri nivoa i ukupne površine do 600 m², pri čemu minimalna površina pojedinačne kuće iznosi 70 m². Gradnja je moguća po sopstvenom projektu ili uz podršku građevinske firme prodavca.

Za lokaciju su dobijeni urbanističko-tehnički uslovi, a izrađen je i arhitektonski projekat kuća sa kompletnim uređenjem pripadajuće teritorije. Na zahtjev kupca moguće su izmjene projekta u pogledu površine i drugih detalja. Prema važećem arhitektonskom rješenju, na svakom od tri placa planirana je izgradnja prizemne kuće površine 151 m² sa terasama, kao i pomoćnog objekta – ljetnje kuhinje sa roštilj zonom, površine 38 m². Ukupna površina objekata po jednom placu iznosi 194 m² i predviđena je za jedno domaćinstvo.

U cijenu realizacije projekta za jednu kuću po sistemu „ključ u ruke“ uključeni su kupovina placa, projektovanje, svi priključci, hortikulturno uređenje, porezi i građevinska dozvola. Konačna cijena zavisi od potrebne površine placa. Orijentaciona površina objekata iznosi 151 m² kuće plus 38 m² ljetnje kuhinje, ukupno 189 m².

Plac je ograđen sa svih strana, a pristupni put je asfaltiran. Duž cijele ulice postavljena je gradska rasvjeta. Dostupan je brzi internet, kao i kompletna gradska infrastruktura. Vodosnabdijevanje je obezbijeđeno iz dva izvora: gradske vode i industrijske vode iz jezera, koja se distribuira slobodnim padom, bez ograničenja i bez naknade.

Cijena za kupovinu placa površine 4.786 m² iznosi 65.000 €.
Kupovina placa sa izgradnjom objekta dostupna je po dogovoru, sa cijenama koje počinju od 170.000 €.

Sve navedene informacije smatraju se tačnim i pouzdanim, a dostavljene su od strane prodavca i provjerenog izvora. Ipak, krajnja odgovornost za sprovođenje potrebne provjere leži na kupcu, te se preporučuje angažovanje profesionalne pravne pomoći.


Javite se da dobijete više informacija

CAPTCHA
This question is for testing whether or not you are a human visitor and to prevent automated spam submissions.

Porto

Kupite nekretninu u Crnoj Gori pomoću našeg Vodiča za kupovinu

Dobijte stručne uvide uz naš BESPLATNI vodič za kupovinu nekretnina u Crnoj Gori! Kreirali su ga profesionalci sa decenijama u poslovanju nekretninama. Samo unesite svoj email i započnite svoje putovanje do savršene nekretnine već danas!