O nekretnini
Na prodaju plac površine 782 m², smješten u Petrovcu, iznad glavne saobraćajnice.
Udaljenost do mora je približno 1,4 km pješke, a nadmorska visina placa iznosi oko 65 m.
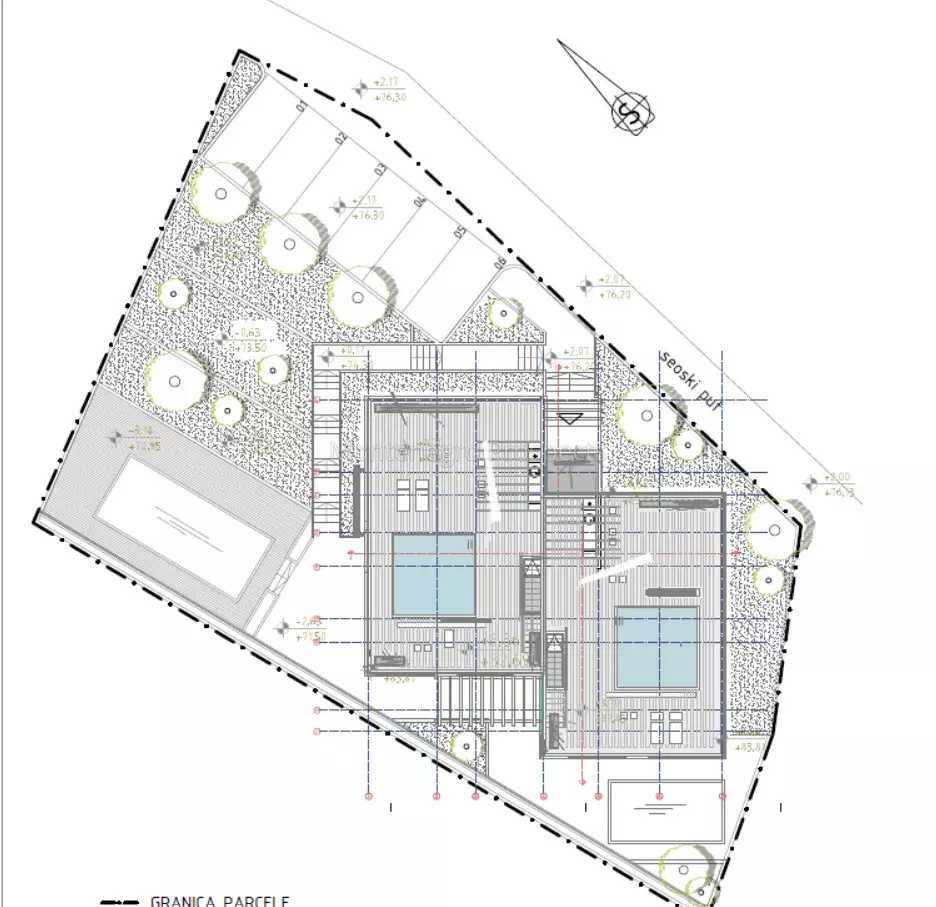
Za ovaj plac je 2008. godine odobren projekat za izgradnju objekta bruto površine 692,4 m², a tada su takođe plaćene komunalije (naknada za uređenje građevinskog zemljišta).
Tačnije:
-
BRUTTO površina: 586,41 m²
-
Zatvorene terase: 82,36 m²
-
Otvorene terase: 23,27 m²
Projekat nije realizovan do kraja, ali na placu postoji temelj izgrađen prema projektu iz 2008. godine.
Pristupni put i električna energija nalaze se na granici parcele.
